Engenharia Elétrica Completa: Projetos, Inspeções e Laudos
Projetos elétricos, SPDA e telecom para residências de alto padrão e edificações comerciais/residenciais — além de inspeções e laudos de SPDA com medições rastreáveis e relatório técnico.
Projetos elétricos, SPDA e telecom para residências de alto padrão e edificações comerciais/residenciais — além de inspeções e laudos de SPDA com medições rastreáveis e relatório técnico.
Objetivo: entregar soluções normativas e executáveis, priorizando segurança, funcionalidade e confiabilidade.
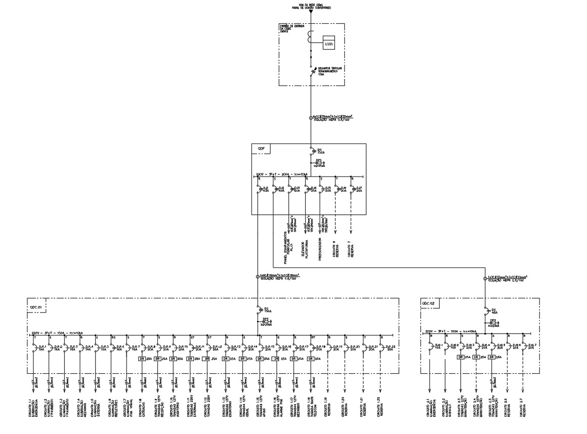
Projetos executivos para residências de alto padrão e edifícios comerciais e residenciais, com documentação completa e clareza para execução.

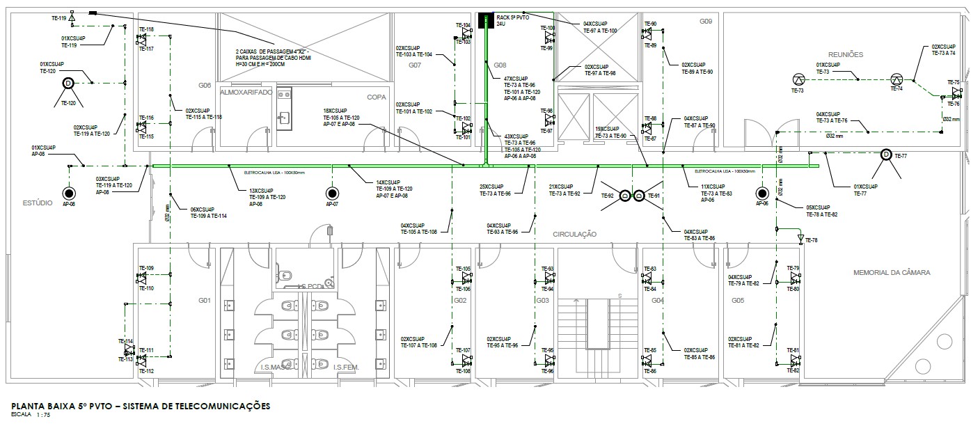
Infraestrutura de telecomunicações para redes e sistemas: backbone, racks, prumadas e pontos, com foco em organização e expansibilidade.

Projeto de SPDA conforme ABNT NBR 5419, definido por gerenciamento de risco e detalhado para execução e manutenção do sistema.

Inspeções em campo com medições, registro fotográfico e relatório técnico para conformidade e redução de risco.

Apoio completo para regularização junto ao Corpo de Bombeiros, com foco em segurança, conformidade e liberação para funcionamento do imóvel.

Empresa de engenharia com foco em projetos, laudos e conformidade técnica.
A MGX Engenharia e Soluções Integradas é especializada em projetos complementares, com foco em engenharia elétrica, SPDA e telecom — além de inspeções e laudos técnicos de SPDA.
Atuamos com projetos executivos, vistorias, relatórios técnicos e adequações de sistemas, seguindo as normas vigentes e priorizando segurança, confiabilidade e funcionalidade para proteção de pessoas, patrimônios e sistemas.
Regularização e segurança para operação, alvará e conformidade.
Para lojas, ambientes comerciais e edificações, a regularização do AVCB é essencial para segurança e para viabilizar processos de licenciamento e funcionamento.
Atuamos com projetos e adequações seguindo as Instruções Técnicas do CBMMG, priorizando soluções executáveis, documentação adequada e atendimento às exigências do Corpo de Bombeiros.
Metodologia moderna para reduzir riscos, retrabalho e custos na obra.
O BIM não é apenas modelagem 3D. É uma metodologia que integra todas as informações do empreendimento em um modelo digital inteligente. Cada elemento do projeto carrega dados técnicos — especificações, circuitos, potência, materiais e normas aplicáveis.
Para o cliente, contratar um projeto em BIM significa investir em menor risco de surpresas, melhor previsibilidade de custos e um ativo digital que pode ser utilizado para manutenção e futuras ampliações.
Medições em campo, registro fotográfico e relatório técnico para conformidade e redução de risco.
Integridade, fixações e continuidade dos componentes de captação e cobertura.
Conferência de trajetos, conexões, emendas e pontos críticos ao longo das descidas.
Medições e avaliação de interligações/equipotencialização para desempenho e segurança do sistema.
Medição com terrômetro, com metodologia definida conforme necessidade do site e boas práticas.
Ensaios com miliohmímetro para verificar interligações, conexões e equipotencialização.
Resultados, evidências fotográficas, não conformidades e recomendações de adequação.
Clique para ampliar e navegar entre os exemplos.
Se desejar, podemos substituir por imagens “anonimizadas” (sem endereço/dados) para manter sigilo.
Resposta rápida por WhatsApp e e-mail.
Dica: para orçamento, envie endereço, tipo de obra e prazo desejado.